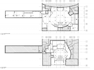
مسرح ليريك – الأماكن العامة
← جميع المشاريع

مشاريع في نيويورك، تجديد وترميم المسارح

مسرح ليريك – الأماكن العامة

نيويورك، نيويورك

يرجى تحديد لغتك المفضلة.