威奇托中央图书馆
← 所有项目

文化和公民机构

威奇托中央图书馆

威奇托,堪萨斯州

H3与威奇托市合作,为新建的中央图书馆制定了规划方案。该图书馆将成为威奇托公共图书馆系统的主要设施及行政总部。

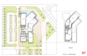
通过将中央图书馆从市中心迁至威奇托市的德拉诺区,新图书馆将成为一座卓越的21世纪公共建筑,满足更广泛威奇托社区的需求。新址将作为城市的门户与核心地标,同时成为推动市中心对岸区域发展的催化剂。

新建筑的形态与河流的自然物理条件相呼应,在功能布局上体现了历史住宅区与市中心商业区之间的联系。

该设计融合了最新技术,并为未来的扩展策略预留空间,旨在持续提升该设施在公共教育和娱乐方面的潜力。

客户:威奇托市(堪萨斯州)
竣工时间:2018年
建筑面积:90,000平方英尺
造价:3700万美元

请选择您偏好的语言。